Der neue SchulbauKasten!

Jetzt Neu - Der SCHulbaukasten!

Seriell,
DIGITAL &
Schnell

SCHULE
BAUEN GEHT
Einfacher

FAQ – Frequently Asked Questions

Die meistgestellten Fragen und Antworten zum Schulbaukasten von KLEUSBERG

DER NEUE SCHULBAU­KASTEN

Damit kommen Sie Ihrem neuen Schulgebäude so nah wie nie zuvor – mit der Erfahrung aus über 165 Schulbauprojekten und nach zahlreichen Praxisanalysen bietet Ihnen KLEUSBERG jetzt die Möglichkeit, Ihr Bauvorhaben individuell und so schnell wie nie zuvor zu realisieren. Mit dem neuen KLEUSBERG Schulbaukasten - bestehend aus 44 vorgefertigten Modul-Segmenten - entwickeln Sie gemeinsam mit unseren Experten zeitgemäße Räume für Schüler und Lehrer – einfach, wirtschaftlich & digital.

IN DREI SCHRITTEN

So einfach funktioniert der Schulbaukasten

01

Digital
konfigurieren

In interaktiven Planungs-Meetings entwickeln unsere Experten mit Ihnen gemeinsam Ihr neues Schulgebäude.

Digital konfigurieren

02

Seriell
gefertigt

Die auf Basis unserer Plattform seriell gefertigten Module werden gemäß Ihrer Planung für den Bau vorbereitet.

Seriell gefertigt

03

Plug
and Play

Auf der Baustelle werden die Module innerhalb weniger Tage zusammengesetzt, innen und außen finalisiert und nach wenigen Wochen bereits in Betrieb genommen.

Plug and Play

EINE PLATTFORM.  44 MODUL-
Segmente. UNENDLICHE MÖGLICH­KEITEN.

Mit 44 vorgedachten, auf Basis zahlreicher Analysen von Schulbauten entwickelten und frei kombinierbaren Modulgrundrissen entsteht Ihr neues Schulgebäude. Die einzigartige Modulbau-Plattform von KLEUSBERG wird das Bauen der Zukunft nachhaltig verändern. Seriell, schnell und wirtschaftlich.

module-1
module-2
module-3
module-4
module-1
module-2
module-3
module-4
module-1
module-2
module-3
module-4
module-1
module-2
module-3
module-4

VORTEILE DES
SCHULBAU­KASTENS?
EINZIGARTIG.

Ihre nächste Schule kommt aus dem Baukasten. Wetten?

KOMPLETT
VORGEPLANT

Ausgereifte Architektur, Technik, Oberflächen und Ausstattung ergeben eine perfekt funktionierende Gesamtlösung.

INDIVIDUELLE
MÖGLICHKEITEN

Trotz Standardisierung bleibt viel Spielraum für individuelle Wünsche und spezielle pädagogische Konzepte.

POSITIVE
CO2-BILANZ

Durch die Materialauswahl und Fertigungsmethoden ergibt sich eine positive Bilanzierung von Treibhausgasen.

FESTPREIS
GARANTIERT

Know-how, Standardisierung und industrielle Prozesse machen Ihr Schulprojekt kalkulierbar.

FÖRDERFÄHIG

Dank wärmebrückenfreier Dämmung und niedrigen Energiekosten greift die Neubau-Förderung der KfW.

FERTIG IN
unter 3 Monaten

Bereits nach 10 bis 12 Wochen kann Ihre neue Schule schlüsselfertig übergeben werden - u.a. dank 80% Vorfertigung.

Gebaute Schulen

0Stk.

Eingespartes C02

0%

Vorfertigungs­grad
im Werk

0%

eingesparte Planzeit

0%

Recyclebare Materialien

0%

Festpreis­garantie

0%

Schulen aus dem Baukasten –
zum weiter­denken!

Bewährt, modern oder experimentell: Mit dem neuen Schulbaukasten lässt sich jede Schule bauen. Anhand von beispielhaften Grundrissen und Gebäudekonzepten zeigen wir Ihnen ein paar Ideen.

Riegel HPL
Riegel EG
Riegel HPL
Riegel EG

Bewährt – der Riegel

Beispielkonfiguration:

Geschosse: 2 (max. 3)
Geschossfläche: 1.587 m²
Klassenräume: 10
Klassenraumgrößen: 60 m², 85 m²
Schülerzahl: 300

L Form Putz
L Form EG
L Form Putz
L Form EG

Lebhaft – die L-Form

Beispielkonfiguration:

Geschosse: 2 (max. 3)
Geschoßfläche: 2.156 m²
Klassenräume: 16
Klassenraumgrößen: 50 m², 60 m²
Schülerzahl: 520

Z Form Holz
Z Form EG
Z Form Holz
Z Form EG

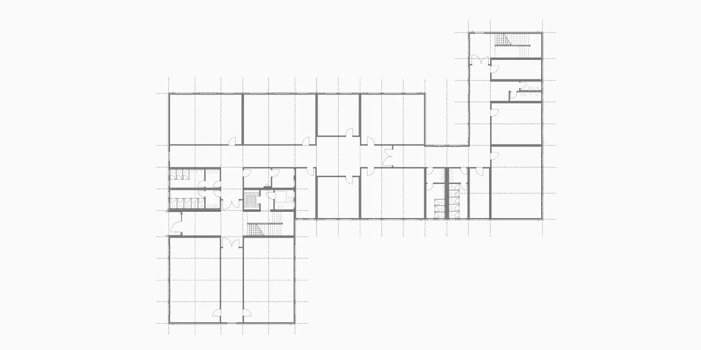
Dynamisch - Die Z-Form

Beispielkonfiguration:

Geschosse: 2 (max. 3)
Geschossfläche: 2.382 m²
Klassenräume: 14
Klassenraumgrößen: 60 m², 68 m², 81 m²
Schülerzahl: 420

RÄUME ZUM LERNEN UND LEHREN

Schulgebäude für zeitgemäße, pädagogische Konzepte.

PLANUNG UND FERTIGUNG

Digital, vorgefertigt, schlüsselfertig – die Idee des Modulbaukastens und damit die Möglichkeit, Ihr neues Schulgebäude schnell und kostensicher zu errichten, basiert im Wesentlichen auf einem hohen Standardisierungs- und Vorfertigungsgrad. KLEUSBERG wendet hier industrielle Prozesse, Verfahren und Technologien an, um Qualitätsstandards zu wahren, Bauzeiten zu verkürzen und Kosten zu kontrollieren.

holz

stahl

INNERE UND ÄUSSERE
WERTE der Holz-Hybrid BAUWEISE

Die neue Holz-Hybrid-Modulbauweise besticht durch nachhaltige Materialien, die in ihrer Kombination den perfekten Mix für ein Schulgebäude ergeben: grundsolider Stahlrahmen, Boden und Decke aus Massivholz und natürliche Holzfaserdämmung.

Natürlich
Nachhaltig