
2014 hat KLEUSBERG die 1.530 m² große Kindertagesstätte in Reinbek fertiggestellt. Nach nun knapp 4 Jahren Nutzung erforderte der gestiegene Betreuungsbedarf eine Erweiterung der bestehenden Einrichtung, welche KLEUSBERG nun ebenfalls in modularer Bauweise errichtet.
Montag, den 23. Juli 2018 fand die offizielle Grundsteinlegung mit Versenkung einer Zeitkapsel statt, welche die Kinder, gefüllt mit einer aktuellen Tageszeitung und eigenen Wünschen, in das Fundament setzten. Noch in dieser Woche sollen die Module vor Ort angeliefert und montiert werden, sodass im Anschluss mit dem Innenausbau begonnen werden kann.
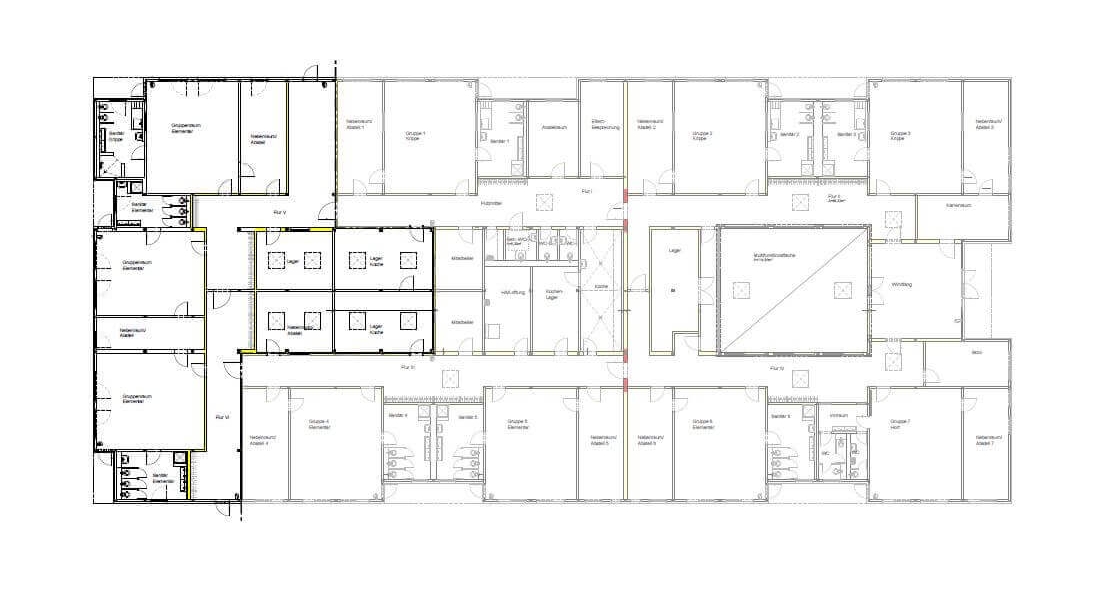
Neben zwei weiteren Gruppen- und dazugehörigen Nebenräumen schafft der Anbau auf 540 m² Bruttogeschossfläche Platz für einen sogenannten "Snoezelbereich" (Schonraum/Rückzugsort) sowie ein Eltern-Café. Zusätzliche 7 Lichtkuppeln sorgen für das nötige Tageslicht und eine angenehme Raumatmosphäre.
Die Fertigstellung ist für November 2018 geplant.
Ab Dezember 2018 werden dann statt 110 bis zu 160 Mädchen und Jungen in vier Krippen- und sechs Elementargruppen betreut. Damit stellt die Kita "Weltensegler" die Größte des Betreibers ASB in ganz Schleswig-Holstein dar.
Grundriss

Bleiben Sie up to date! Abonnieren Sie unseren Newsletter und erfahren Sie von spannenden Projekten, aktuellen Trends und exklusiven Einblicken. Einfach anmelden und nichts verpassen!