
Die Stadt Freystadt plant für 2019/20 den Neubau einer Kindertagesstätte. Da die Anmeldezahlen gestiegen sind und somit kein ausreichender Platz für die zu betreuenden Kinder zur Verfügung steht, beschloss der Stadtrat eine Übergangslösung zu schaffen, die bis zur Fertigstellung der neuen Einrichtung den räumlichen Engpass entschärft. Die PLUS Mietmodule von KLEUSBERG stellen dabei eine individuelle, energieeffiziente und damit äußerst wirtschaftliche Lösung dar.
Am 6. August 2018 trafen sich Stellvertreter der Stadt Freystadt, der evangelischen Kirchengemeinde Sulzkirchen als Träger, des Neumarkter Landratsamts sowie Vertreter der Planungsbüros und beteiligten Firmen zum offiziellen Spatenstich für die temporäre Kindertagesstätte. Die Bauarbeiten waren zu diesem Zeitpunkt bereits in vollem Gange.
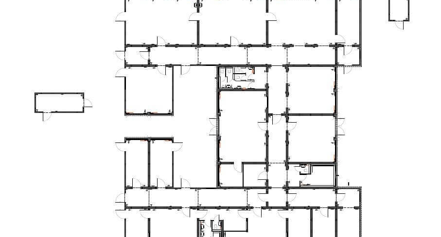
Insgesamt werden 51 Module auf dem 2.750 m² großen Grundstück bereitgestellt. Auf 751 m² Nutzfläche bieten diese anschließend Platz für je zwei Krippen- und Regelgruppen für zusammen 74 Kinder.
"Wir wollten keine Notlösung, sondern eine vernünftige Anlage für die gute Betreuung unserer Kinder", betonte der 1. Bürgermeister der Stadt Freystadt Alexander Dorr. Anfang September 2018 soll die Interimskita ihren Betrieb aufnehmen.
Bis zur Fertigstellung des eigentlichen Kitaneubaus in spätestens 36 Monaten werden die Kinder hier versorgt. Die entsprechend dem Alter und der Größe der Kinder angepassten Sanitäranlagen, Ruhezonen für die Jüngsten sowie großzügigen Spielbereiche bieten eine optimale Umgebung.
Grundriss

Bleiben Sie up to date! Abonnieren Sie unseren Newsletter und erfahren Sie von spannenden Projekten, aktuellen Trends und exklusiven Einblicken. Einfach anmelden und nichts verpassen!