
Freitag, den 03. August 2018 konnte die neue Kindertagesstätte "Aggerpänz" an die Stadt Lohmar übergeben werden. Diese fungiert als Ersatzbau für die im Jahr 2014 übergangsweise in der Hermann-Löns-Straße 17 eröffnete Kita.
KLEUSBERG errichtete das 980 m² große Modulgebäude innerhalb einer Bauzeit von 6 Monaten. In vier Gruppen (Wasserfloh-, Frosch-, Raupen- und Schmetterlingsgruppe) können dort ab sofort bis zu 53 Kinder im Alter zwischen 3 und 6 Jahren sowie 22 Krippenkinder betreut werden. „Es sehr erfreulich und bemerkenswert, dass in solch kurzer Zeit ein so schönes und wichtiges neues Gebäude für die Stadt Lohmar errichtet werden konnte“, so Peter Madel, erster Beigeordneter der Stadt Lohmar in einem Bericht auf www.lohmar.de.
Bereits bei der Planung wurde eine nachträgliche Aufstockung berücksichtigt, sodass die Kita im Bedarfsfall mit verhältnismäßig geringem Aufwand erweitert werden kann.
Ähnlich wie bei der Kindertagesstätte in Neunkirchen-Seelscheid kamen großflächige Dachfenster zum Einsatz, durch die die Räumlichkeiten zusätzlich mit natürlichem Licht durchflutet werden. Die Raumaufteilung und -anordnung der Einrichtung wird sowohl aus pädagogischer als auch funktionaler Sicht den Bedürfnissen der Kinder gerecht. Zudem stellt der Neubau einen Teil der geplanten Stadtentwicklung dar. Durch ein attraktives Erscheinungsbild integriert die Kita sich optimal in das städtebauliche Umfeld. Die zum Einsatz kommenden Aluminiumverbundplatten heben den Eingangsbereich optisch hervor und grenzen diesen bewusst von den übrigen Gebäudeteilen ab, welche überwiegen eine Putzfassade erhielten.
Die Architektinnen Andrea Schnieber und Sarah Vogel vom Architekturbüro „Architektur vor Ort“ aus Engelskirchen sind für die Planung des Neubaus verantwortlich.
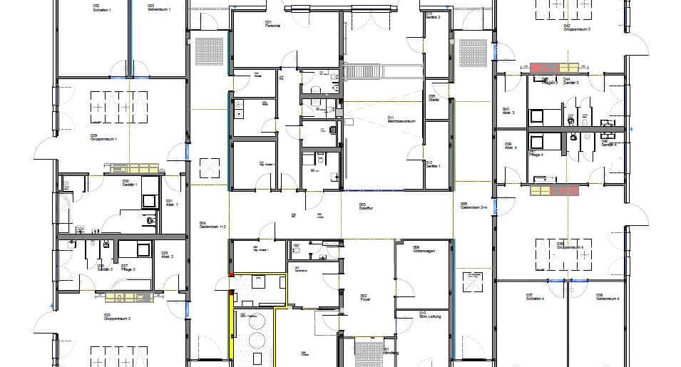
Grundriss

Bleiben Sie up to date! Abonnieren Sie unseren Newsletter und erfahren Sie von spannenden Projekten, aktuellen Trends und exklusiven Einblicken. Einfach anmelden und nichts verpassen!